Baerz & Co is een landelijk samenwerkingsverband van zorgvuldig geselecteerde boutique luxury makelaars. Samen vormen wij één netwerk, met één gedeeld aanbod. De woningen die u op onze website ziet, zijn afkomstig van alle aangesloten kantoren binnen Baerz & Co. Daardoor is niet ieder object rechtstreeks door ons kantoor in verkoop, maar door een gespecialiseerde collega binnen ons netwerk. Heeft u een woning gevonden die u aanspreekt en wilt u meer informatie? Dan brengen wij u graag persoonlijk in contact met de betreffende verkoopmakelaar, zodat u direct en zorgvuldig wordt begeleid.

AMSTERDAM
Larikslaan 33 - 1087 SC
Netherlands

Roy Boesveld profile image
Roy Boesveld
Real Estate Agent
€3,550,000 k.k.
Living Area
353m2
Plot Size
455m2
Bedrooms
6

Description

Breathtaking Detached Villa on Rieteiland Oost, Amsterdam.
Sailing, swimming, and recreation directly from your garden!

Step into this impressive detached villa from 2018, located on the serene Rieteiland Oost in Amsterdam. With a generous area of 380 m2, including a garage and a private dock on wide waters, this home offers everything you could wish for. The leasehold has been bought off until 2058.
This dream villa exceeds all expectations with panoramic views from every floor over the water, a sensational rooftop terrace, 7 (bed)rooms, 3 luxurious bathrooms, an integrated garage and parking space for 4 or 5 cars on private grounds.
Here, you enjoy unparalleled privacy, tranquility and space, just a short distance from the center of Amsterdam.
The architecture and interior are harmoniously aligned and it is possible to purchase the home including furniture upon agreement.

Layout of the Villa

GROUND FLOOR
From the spacious hall with high ceilings, you enter the generous living area with large glass windows that immediately offer a beautiful view. The space has an impressive ceiling height and a cozy fireplace. Various sliding doors lead to the carefully landscaped garden with its own dock on the water. The garden features a large hardwood terrace, lawn and green borders.
The luxurious kitchen is a dream for any chef, equipped with all modern appliances such as a Quooker, a Bora induction cooktop with integrated extraction system, dishwasher, extra large fridge and freezer, steam oven and a combi-oven. The coffee bar separates the kitchen from the study. There is also an outdoor kennel accessible from inside for your beloved pet.

FIRST FLOOR
All rooms are accessible from the landing. This floor features a modern poured floor. The master suite at the rear offers a breathtaking view over the water, a walk-in closet and an en-suite bathroom. The bathroom is equipped with a shower, an Aquaclean Geberit toilet, double sink vanity and a freestanding bathtub with the same view. From the bathroom, there is direct access to the spacious walk-in closet.
The spacious bedroom at the front can easily be divided into two bedrooms and offers a nice view of the entrance. This room is equipped with electric screens.
The intermediate bedroom is currently set up as a laundry room but is also very suitable as a bedroom. The second bathroom on this floor features a walk-in shower, toilet and vanity unit.

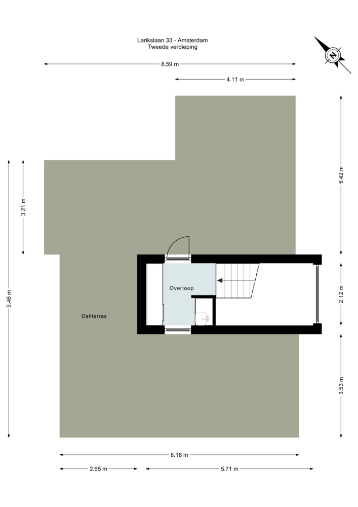
ROOFTOP TERRACE
The second floor provides access to the sunny rooftop terrace with unparalleled privacy. On the landing, there is a kitchenette with a fridge and sink.

BASEMENT
This full-fledged floor with daylight houses a home cinema, guest room, room with a ping pong table, the technical room, storage space and the third bathroom. The bathroom features a toilet, sink and walk-in shower.

LOCATION
Rieteiland Oost offers a unique combination of natural beauty and urban accessibility. Nowhere else so close to Amsterdam's city center are there plots for self-built homes that offer so much space and freedom, tranquility and privacy, water and dune landscape - a rarity in Amsterdam.
The island borders the Diemerpark where you will find your own beach and sports clubs for football and hockey, among other things. On the island itself, there are facilities for playing in the playground, tennis and canoeing.
Location on one of the offshoots of the Amsterdam Buiten IJ. You sail here without needing to go through a lock to the open waters of the Markermeer. Take your boat to Volendam for fish, spend a day at Marker Wadden, sail the Randmeren and have lunch on the Vecht. Of course, you can also sail into Amsterdam; with a boat, the possibilities are endless.
Rieteiland Oost is quiet with only destination traffic. IJburg is close to the A10 and A1 and with tram line 26 (stop near the house), you are at Central Station in about fifteen minutes.
IJburg offers several primary schools, the IJburg College (VWO, HAVO, and VMBO), health centers, and childcare. The shopping center, with artisan shops, a large Albert Heijn, Hema, cozy restaurants, trendy cafes, theater and the city beach Blijburg, is a short distance from the house. Schools in Amsterdam-South are reachable by e-bike within 20 minutes.
This villa is not just a home; it is a lifestyle.

HIGHLIGHTS
- Unobstructed view over the water with a private dock
- Lots of privacy and exclusivity on all levels
- High-quality, luxuriously finished home
- Six bedrooms with the possibility to create a 7th bedroom
- Parking space for 4 to 5 cars on private grounds
- House area according to NEN 2580 is 380m² (including the integrated garage of 26m²)
- High ceilings
- Spacious living area with large glass windows and fantastic views over the water
- Cozy fireplace
- Kennel for a small dog, accessible from inside the house
- Electric screens on the south side
- Energy label A+
- Leasehold bought off until 2058
- Delivery in consultation
- Notary choice to the buyer, within the Amsterdam/Amstelveen region

You need to feel and experience this villa. We are happy to give interested parties a tour of this unique home!

This information has been compiled by us with the necessary care. However, no liability is accepted on our part for any incompleteness, inaccuracy, or otherwise, or the consequences thereof. All stated dimensions and surfaces are indicative. NVM terms and conditions apply.

Features

Alarm system
Transfer of ownership
Asking Price
€ 3.550.000 k.k.
Status
beschikbaar
Acceptance
in overleg
Construction
Kind of house
Villa
Building type
vrijstaande woning
Construction period
2018
Energy rating
A+
Roof type
plat dak
Bedrooms
6
Bathrooms
3
Surface Areas And Volume
Living Area
353 m2
Other indoor space
26 m2
Exterior space attached to the buildinge
90 m2
Volume in cubic meters
1364 m3
Plot Size
455 m2
Facilities
Mechanische ventilatie
Alarminstallatie
Buitenzonwering
Rookkanaal
Schuifpui
Aan water
Aan rustige weg
Vrij uitzicht
Aan vaarwater
 

Videos

Floor Plans

Willemsen Makelaars

Jansplaats 29
6811 GB Arnhem

r.boesveld@willemsen.nl
+31 26 445 27 51

www.willemsen.nl

Information / Viewing request

Roy Boesveld profile image
Roy Boesveld
Real Estate Agent

Buying a Luxury Property in Amsterdam

Amsterdam offers a cosmopolitan lifestyle defined by heritage, connectivity, and discreet luxury. Residents benefit from a robust international community, curated services, and vibrant culture. The city’s enduring appeal lies in its blend of history, sophistication, and progressive spirit.