Baerz & Co is een landelijk samenwerkingsverband van zorgvuldig geselecteerde boutique luxury makelaars. Samen vormen wij één netwerk, met één gedeeld aanbod. De woningen die u op onze website ziet, zijn afkomstig van alle aangesloten kantoren binnen Baerz & Co. Daardoor is niet ieder object rechtstreeks door ons kantoor in verkoop, maar door een gespecialiseerde collega binnen ons netwerk. Heeft u een woning gevonden die u aanspreekt en wilt u meer informatie? Dan brengen wij u graag persoonlijk in contact met de betreffende verkoopmakelaar, zodat u direct en zorgvuldig wordt begeleid.

BANTEGA
Klijnsmavaart 8 - 8538 RM
Netherlands

€1,250,000
Living Area
161m2
Plot Size
31826m2
Bedrooms
3

Description

VREDENHOF – HISTORICAL ESTATE IN DE FRYSKE MARREN
Nestled in the peaceful southern part of the municipality of De Fryske Marren, near Lemmer, lies the distinguished estate Vredenhof.
Acquired in 1973 by the current owner, it immediately captivated with its serene charm and unmistakable character. Here, tranquility, privacy, and history combine effortlessly with excellent accessibility and nearby amenities.
Step onto the estate, and you enter a world of your own, surrounded by lush greenery, sparkling water, and timeless beauty.

LIVING WITH CHARACTER AND HISTORY
The residence has been carefully restored with respect for its heritage, using only the finest, often antique, materials.
The entrance through the kitchen is adorned with an 18th-century transom, delicately carved from linden wood. The kitchen, crafted in historic style by master artisan F. van der Velde, blends seamlessly with the authentic ambiance of the home.
The floors date from the late 19th century, and the kitchen features two blue-and-white panels from around 1800, made in Harlingen.
The sitting room and conservatory showcase unique period details, including a marble fireplace from an Amsterdam canal house (circa 1740) and French doors opening onto the garden. Beneath the conservatory lies a hidden wine cellar with an electric hatch, laid with 18th-century tiles, 17th-century oak wine racks, and original cabinet doors.
The ground floor also offers a stylish front room with a marble fireplace (circa 1820) and a bathroom.
Upstairs, there are two bedrooms.

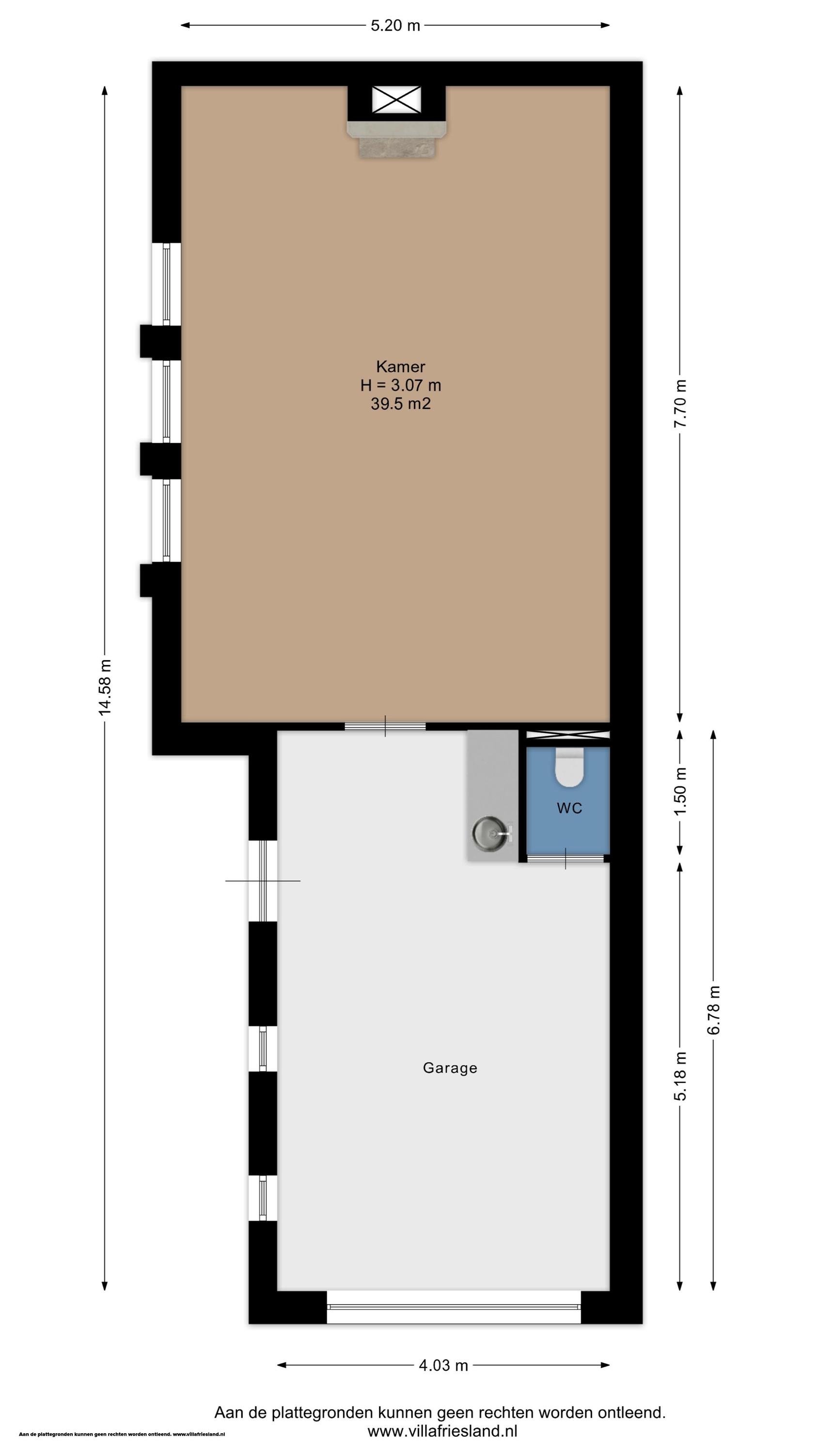
OUTBUILDING WITH CHARM AND POTENTIAL
The elegant outbuilding, featuring long semicircular windows, offers stunning views of the garden. Currently used as office space, it is connected internally to a heated garage with loft, kitchenette, and toilet.
This versatile building could easily be transformed into a fully independent guesthouse.
Full of character, it boasts a Stevenson or Norwich cornice, a French dessus-de-porte from the 18th century, a faux marble fireplace, and a trumeau from a Frisian town hall, all contributing to its historic charm.

AN IMPRESSIVE ESTATE GARDEN
What began as a plot of approximately 1,600 m² has grown into a remarkable estate of approximately 3.18 hectares. The gardens were carefully designed to combine formal and natural elements, including two (swimming) ponds, multiple terraces, garden houses, a conservatory with vegetable garden, wooded areas, and expansive lawns.
A striking feature is the elegant garden dome, designed by F. van der Velde, resting on concrete pillars and topped with a gilded pinecone by artist Axel van der Horst, inspired by the Marekerk in Leiden.
The formal pond is framed with historic elements from the Dominicus Church on Spuistraat in Amsterdam. The water features are supplied by the adjacent canal, creating a vibrant and natural ecosystem.

MOORING AT THE TJEUKEMEER
The estate includes a private mooring of approximately 56 m² in Oosterzee harbor (8 min), directly on the Tjeukemeer – an ideal base for water sports and leisure.

HIGHLIGHTS
• Historical estate with exceptional character and rich heritage
• Tranquil, exclusive location near Lemmer
• Residence with high-quality, often antique materials
• Authentic features: marble fireplaces, 18th-century details, and fine woodwork
• Hidden wine cellar with unique historical finish
• Spacious outbuilding with guesthouse potential
• Estate of approx. 3.18 hectares with ponds, woodland, and gardens
• Architecturally and artistically significant garden dome
• Private mooring in Oosterzee harbor (8 min) on the Tjeukemeer
• Perfect blend of privacy, nature, and accessibility to the Randstad

Vredenhof is a masterpiece where history, craftsmanship, and love for detail converge. A tranquil estate that continues to enchant and inspire.

Features

Alarm system
Transfer of ownership
Asking Price
€ 1.250.000
Status
beschikbaar
Acceptance
in overleg
Construction
Kind of house
Landhuis
Building type
vrijstaande woning
Construction period
1915
Energy rating
E
Roof type
zadeldak
Bedrooms
3
Bathrooms
1
Surface Areas And Volume
Living Area
161 m2
Other indoor space
44 m2
External storage space
78 m2
Volume in cubic meters
809 m3
Plot Size
31826 m2
Facilities
Alarminstallatie
Rookkanaal
Natuurlijke ventilatie
Aan water
Aan rustige weg
Vrij uitzicht
Buiten bebouwde kom
Aan vaarwater
In bosrijke omgeving
Landelijk gelegen
Baerz & Co Property Brochure

Brochure

Videos

Willemsen Makelaars

Jansplaats 29
6811 GB Arnhem

r.boesveld@willemsen.nl
+31 26 445 27 51

www.willemsen.nl

Information / Viewing request

Roy Boesveld profile image
Roy Boesveld
Real Estate Agent

Buying a Luxury Property in Bantega

Bantega stands out for those desiring space, tradition, and refined living. A harmonious community, exceptional properties, and discreet services create a distinctive destination with enduring international appeal.