Baerz & Co is een landelijk samenwerkingsverband van zorgvuldig geselecteerde boutique luxury makelaars. Samen vormen wij één netwerk, met één gedeeld aanbod. De woningen die u op onze website ziet, zijn afkomstig van alle aangesloten kantoren binnen Baerz & Co. Daardoor is niet ieder object rechtstreeks door ons kantoor in verkoop, maar door een gespecialiseerde collega binnen ons netwerk. Heeft u een woning gevonden die u aanspreekt en wilt u meer informatie? Dan brengen wij u graag persoonlijk in contact met de betreffende verkoopmakelaar, zodat u direct en zorgvuldig wordt begeleid.

BERKEL EN RODENRIJS
Rodenrijseweg 349 - 2651 BT
Netherlands

Roy Boesveld profile image
Roy Boesveld
Real Estate Agent
€849,000 k.k.
Living Area
170m2
Plot Size
788m2
Bedrooms
2

Description

Charming 1930s Semi-Detached Home with Deep Garden on the Rodenrijse Vaart

This charming 1930s semi-detached home offers plenty of potential to style and finish entirely to your own taste, all in a pleasant and green location! The property features an impressive 28-metre-deep and extra-wide rear garden, situated on the northwest.

Here you truly enjoy the best of both worlds: on one side, peace and open space along the Rodenrijse Vaart, and on the other, you are just minutes away from the centre of Berkel en Rodenrijs. The RandstadRail is only a 3-minute walk, offering quick and easy access to both Rotterdam and The Hague.

Thanks to the new cycling route, you can reach Rotterdam by bike within 10 minutes. With the new access roads to the N209 and the A13/A16, the property is also extremely well connected by car.

In short: a spacious home with a deep garden and endless possibilities to create your dream house!

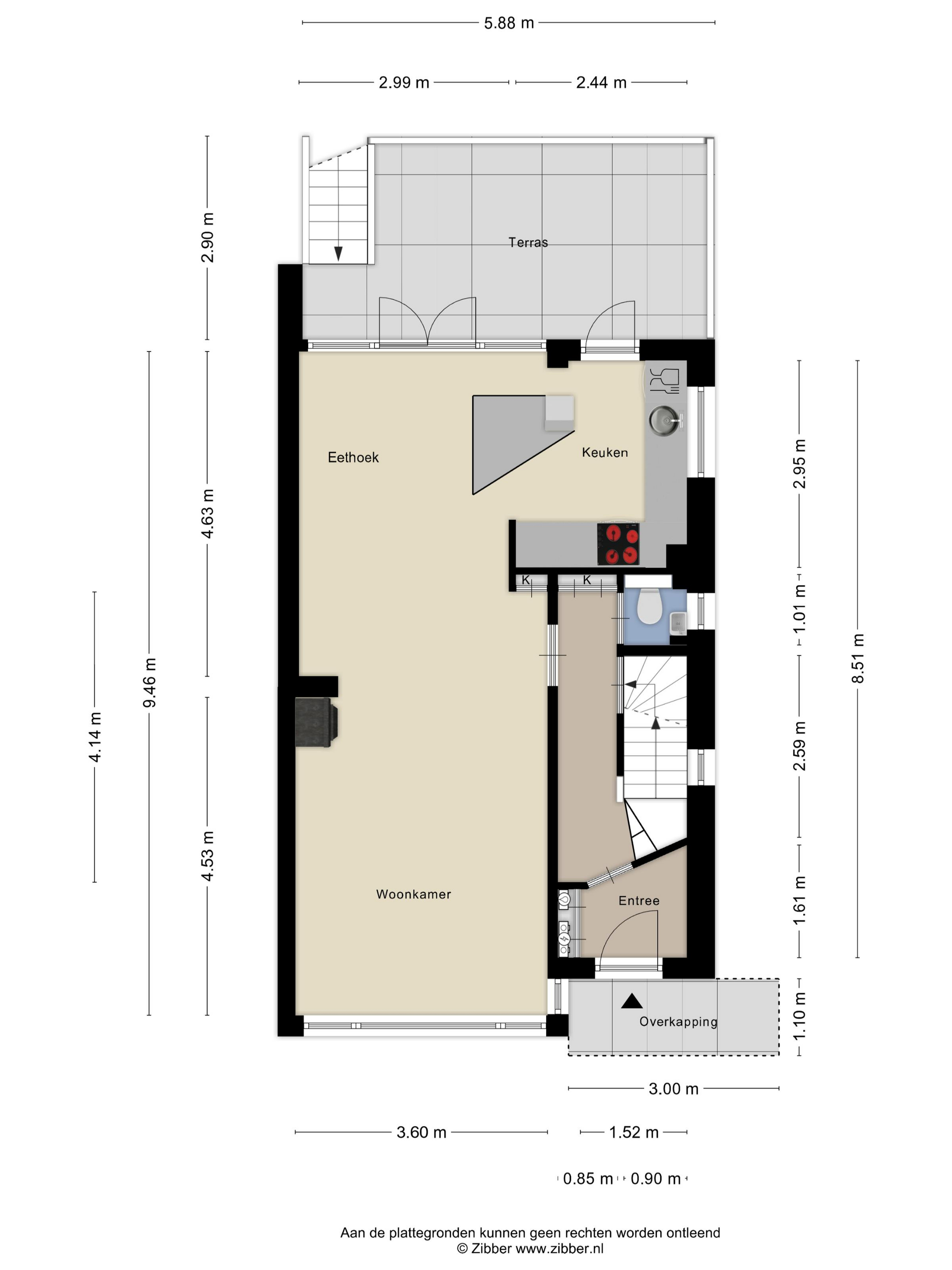
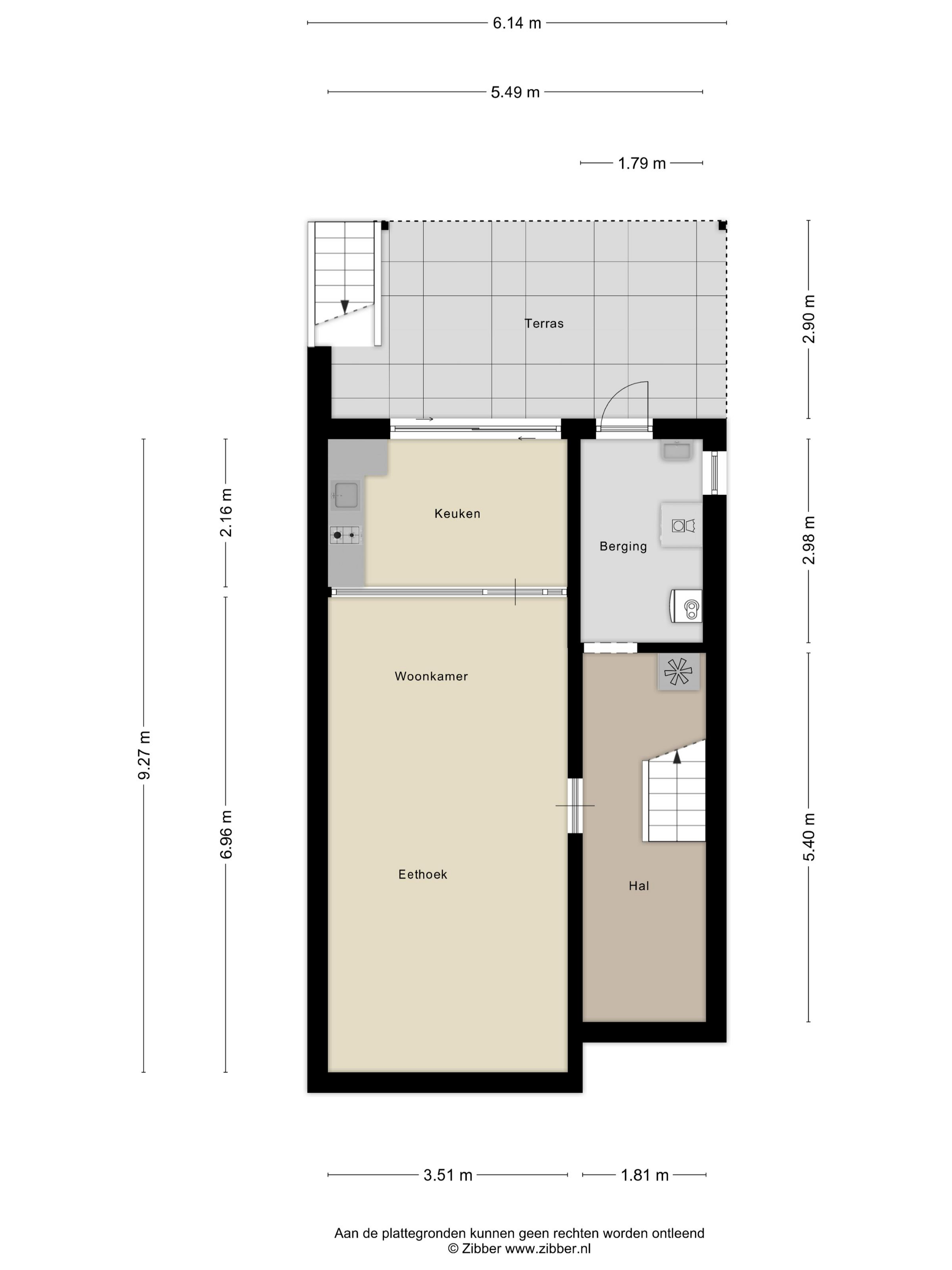
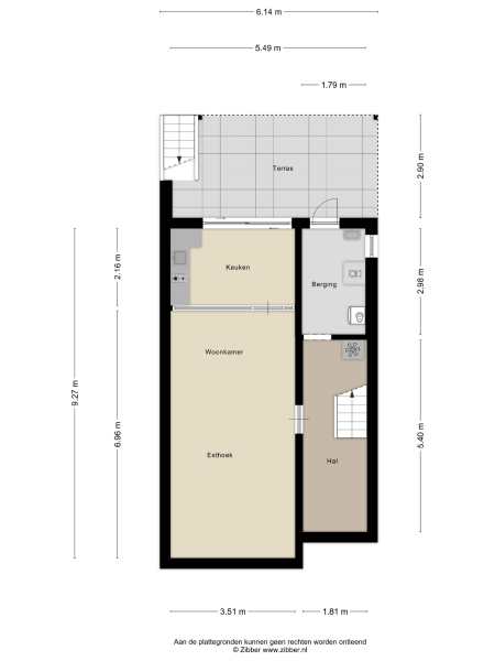
Layout

Front garden:
At the front, you will find a well-maintained garden with a private driveway offering space for multiple cars. The driveway is equipped with a fully remote-controlled gate.

Entrance:
Through the entrance you step into the hall with the meter cupboard, toilet, staircase to the first floor, and access to both the living room and the basement level (souterrain).

Ground floor:
The living room at the front is atmospheric and features a fireplace and a beautiful wooden parquet floor.
At the rear you will find the kitchen, equipped with a refrigerator, dishwasher, oven and induction hob. An electric sunshade spans the full width of the property.
From both the kitchen and dining area you have access to the terrace, overlooking the lush and beautifully landscaped rear garden.

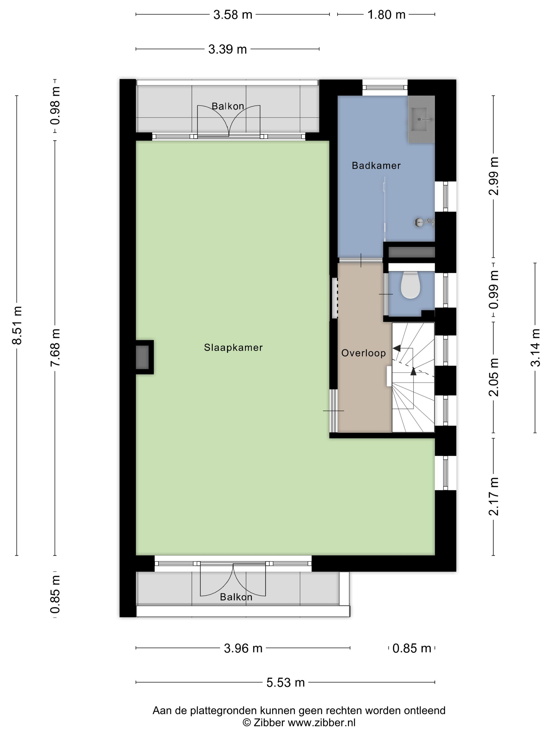
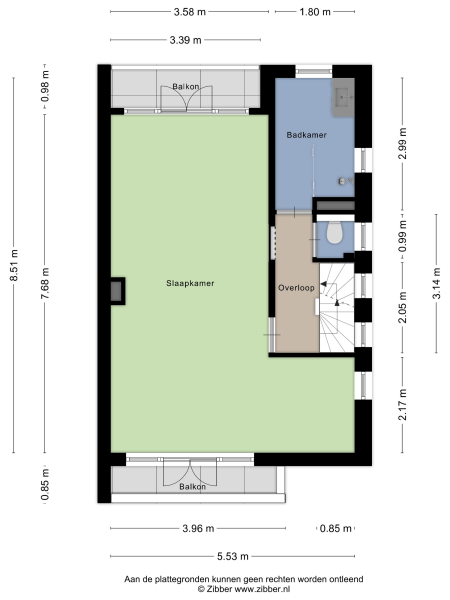
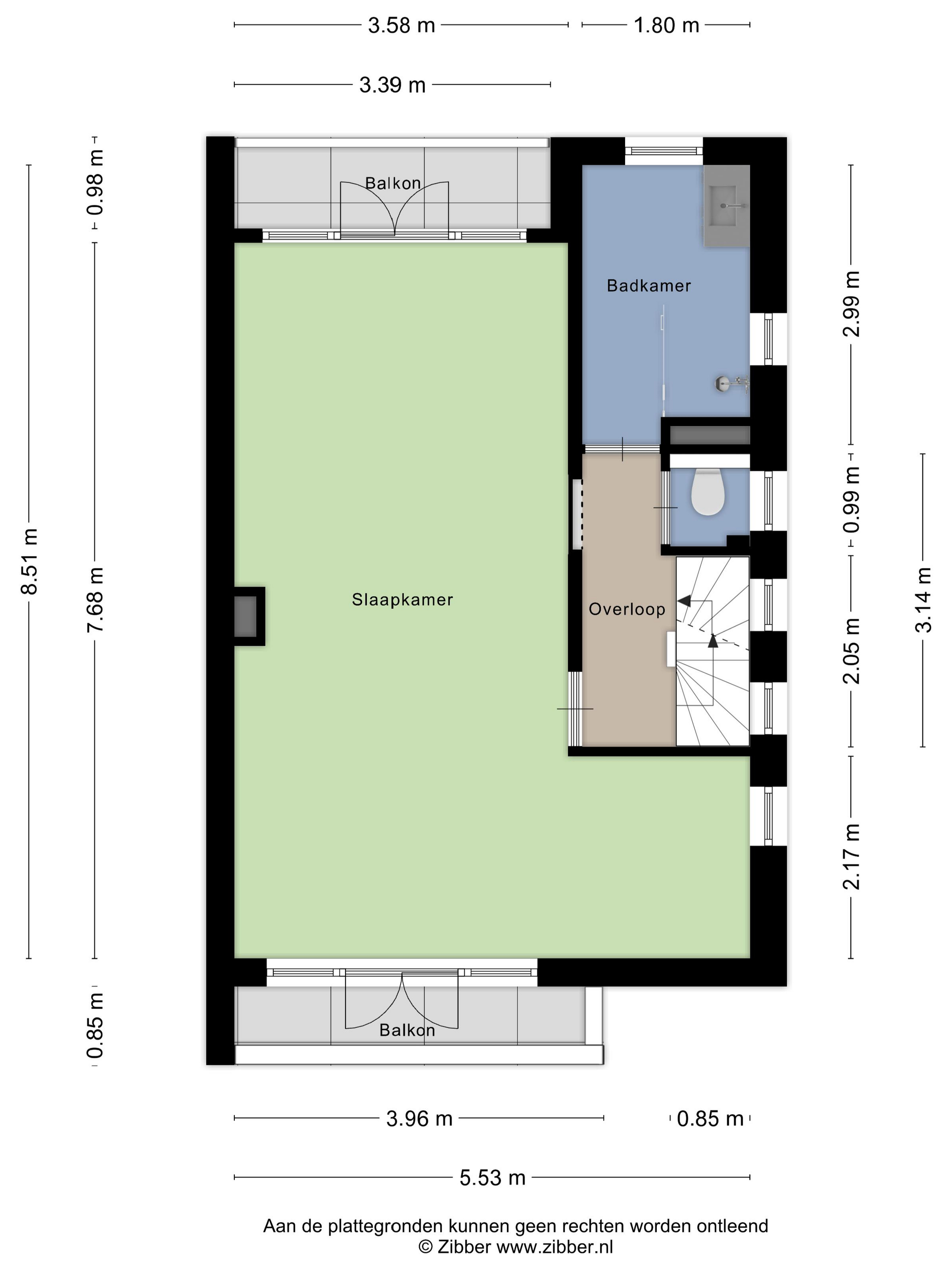
First floor:
Landing with separate toilet, access to the bedroom and bathroom.
The spacious bedroom has balconies at both the front and rear and is fitted with air conditioning. This used to be two separate bedrooms, which can easily be reinstated.
The neat bathroom is equipped with a shower, washbasin and towel radiator.

Second floor:
Landing with washbasin and access to the second bedroom.
The generous second bedroom (also previously two rooms) has a dormer and can also be split back into two. There is sufficient space on the landing to create an additional bathroom.

Basement (Souterrain):
The souterrain features a spacious hall with a separate storage room containing the connections for the washing machine and dryer, as well as the central heating system.
This large room is currently used as a dining area (additional dining room) but offers numerous possibilities, such as a bedroom, play area or hobby room.
There is also a second kitchen with gas stove, refrigerator, dishwasher and sink with mixer tap. Sliding doors provide direct access to the expansive garden. A versatile floor, ideal for work, relaxation or guest accommodation.

Garden:
The deep and wide rear garden is a true highlight, offering many possibilities. For example, you could consider creating a practice/office space, care unit or small B&B.
The garden is green, well maintained and provides lots of privacy. With multiple terraces you can enjoy both sun and shade throughout the day. The pond adds to the tranquil atmosphere.
At the back of the plot you will find a carport with space for several cars, accessible via the Penninghlaan. The carport is fitted with 10 solar panels, and electric charging is also possible.

Next to the house is a half-sunken garage box (2.6 x 5.2 m) with electricity, ideal for additional storage.

Key features:
- Charming 1930s semi-detached home
- 28-metre-deep and extra-wide garden (twice as wide as neighbouring plots)
- Quiet location along the Rodenrijse Vaart
- Accessible from both Rodenrijseweg and Penninghlaan
- Space at the rear suitable for practice or office use (doctor, coaching, office)
- Garage with electricity, ideal for extra storage
- RandstadRail within 3 minutes walking distance
- Just 10 minutes by bike to Rotterdam (new cycling route)
- 10 solar panels
- Private driveway with space for multiple cars
- Completion in consultation, in accordance with the List of Items

We warmly invite you to come and view this wonderful family home in person.

All information provided should be regarded as an invitation to make an offer or enter into negotiations. No rights can be derived from this property description.

Additional Information

All information provided must be regarded as an invitation to make an offer or to enter negotiations. The texts and impressions are intended to give a good impression of the property. The utmost care has been taken with the content; nevertheless, all information is expressly subject to change. No rights can be derived from this property information.

Purchase agreement legally binding only after signature:
An oral agreement between the private seller and the private buyer is not legally binding. In other words: there is no sale. A purchase is only legally valid once both the private seller and the private buyer have signed the purchase agreement. This follows from Article 7:2 of the Dutch Civil Code. A confirmation of the oral agreement by e-mail or a draft purchase agreement sent is not considered a "signed purchase agreement."

Measurement Instruction Disclaimer:
The property has been measured in accordance with the industry-wide Measurement Instruction (BBMI). The Measurement Instruction is intended to apply a more uniform method of measuring to provide an indication of the usable surface area. The Measurement Instruction does not completely exclude differences in measurement results, for example, due to interpretation differences, rounding, or limitations during the measurement process.

Features

Solar panels
Air conditioning
Transfer of ownership
Asking Price
€ 849.000 k.k.
Status
verkocht onder voorbehoud
Acceptance
in overleg
Construction
Kind of house
Eengezinswoning
Building type
twee onder een kapwoning
Construction period
1935
Energy rating
D
Roof type
zadeldak
Bedrooms
2
Bathrooms
1
Surface Areas And Volume
Living Area
170 m2
Other indoor space
0 m2
Exterior space attached to the buildinge
40 m2
External storage space
13 m2
Volume in cubic meters
602 m3
Plot Size
788 m2
Facilities
Tv kabel
Buitenzonwering
Airconditioning
Glasvezel kabel
Zonnepanelen
Aan drukke weg
In woonwijk
Vrij uitzicht
Baerz & Co Property Brochure

Brochure

Videos

Floor Plans

Willemsen Makelaars

Jansplaats 29
6811 GB Arnhem

r.boesveld@willemsen.nl
+31 26 445 27 51

www.willemsen.nl

Information / Viewing request

Roy Boesveld profile image
Roy Boesveld
Real Estate Agent

Buying a Luxury Property in Berkel en Rodenrijs

Berkel en Rodenrijs attracts a discerning community seeking privacy, elegance, and access to exceptional services. Its refined residential offering, vibrant cultural scene, and international schools suit families and global investors focused on quality living.