Looking for a detached, sustainable home with complete privacy in one of the most desirable locations in Berkel-Enschot?
Then this is the property you've been searching for. This home will truly surprise you – not least because of its generous volume (688 m³).
This is genuinely a very spacious residence, with full living quarters in a fully-fledged basement (ceiling height 2.70m) including sliding doors to a private patio, more than 100 m² of living space on the ground floor, and a first floor with two bedrooms and a bathroom.
The home is modern, bold, and architect-designed (by JMW Architects). The layout creates a loft-like feel, with open flowing spaces and seamless indoor-outdoor connections thanks to the extensive glass facades throughout. Comfort is also maximized — this home offers a pleasant indoor climate year-round, thanks to a ground-source heat pump and electric sunshades. The pump provides cooling via underfloor systems in summer and heating in winter.
Beyond these sustainable features, this freestanding home with no direct neighbours offers generous living, privacy, and flexibility — ideal for families, remote working, or future-proof living.
Key features of this home:
Gas-free and equipped with 28 solar panels
Full underfloor heating and cooling via geothermal heat pump
Ideal for families, home-based work, or lifetime living
Detached and private with floor-to-ceiling windows and green views
Complete basement level with outdoor access, bedrooms, and bathroom
Industrial design look: high ceilings, large windows, natural light, open-plan flow
Custom lighting design indoors and out to enhance both house and garden
The village of Berkel-Enschot offers:
The renovated Koningsoord shopping centre with a wide range of shops, supermarkets, and specialty stores
Multiple active sports clubs, good schools, and safe playgrounds nearby
A natural swimming lake with beach club
Excellent access to major cities such as Tilburg, Eindhoven, Breda, and ’s-Hertogenbosch via various motorways
For nature lovers: the Oisterwijk forests and fens, and the Loonse and Drunense Dunes are just a short drive or bike ride away
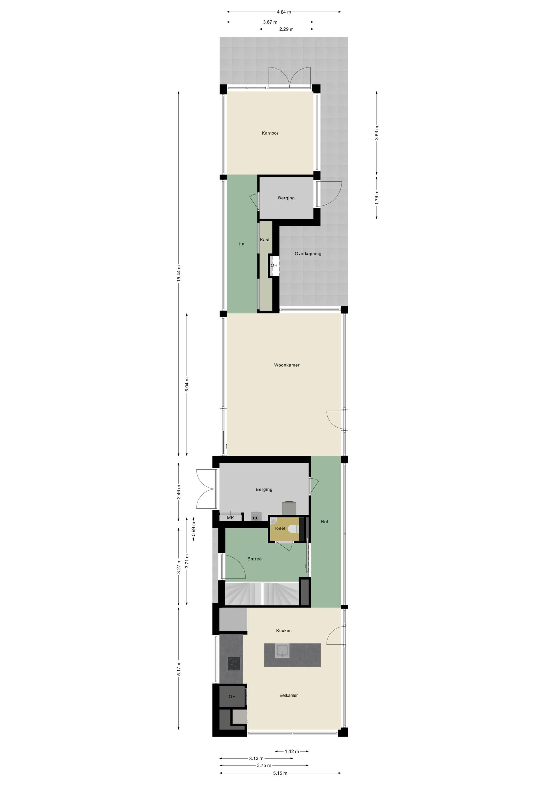
Basement (fully equipped with underfloor heating and cooling)
Hallway
Approx. 12 m², with designer concrete flooring, plastered walls and ceiling, and access door to the patio.
Technical Room
Approx. 5 m², with tiled floor, plastered walls and ceiling, connections for laundry appliances, installation of Nibe geothermal heat pump (2013), electric boiler, and mechanical ventilation system.
This room also includes a toilet.
Bedroom I
Approx. 9.5 m², with designer concrete floor, plastered walls and ceiling, and sliding door with access to the patio.
Bedroom II
Approx. 23.5 m², with designer concrete flooring, plastered walls and ceiling with recessed lighting, walk-in closet, en-suite bathroom, and sliding door to the patio.
En-suite Bathroom
Approx. 3.5 m², with tiled floor, plastered and partially tiled walls, plastered ceiling, walk-in shower with thermostatic tap, and double washbasin.
Patio
Approx. 21.5 m², with lighting and approx. 3m ceiling height from ground level.
Ground Floor (concrete structure, full underfloor heating and cooling)
Entrance Hall
Approx. 11 m², with designer concrete flooring, plastered walls and ceiling. Provides access to guest toilet, coat area, basement, first floor, and open access to kitchen and living room.
Toilet Room
With plastered and partially tiled walls, plastered ceiling with recessed lighting, floating toilet and washbasin.
Transition Area
Approx. 8 m², with designer concrete floor, plastered walls and ceiling with recessed lighting, and full glass wall on one side with views of the southeast-facing garden, with electric sun screens.
Living Kitchen
Approx. 24 m², with designer concrete flooring, plastered walls and ceiling with recessed lighting, fireplace, TV and internet connection, and a kitchen with tall units and cooking island.
The tall cabinets include an extra-deep countertop with a 5-burner induction hob, extractor hood, XL oven, extra-wide 90cm fridge and freezer with built-in ice maker.
The island features a TopCore worktop, integrated sink, Gaggenau dishwasher, and ample workspace.
Also features sliding doors to the garden with electric screens.
Storage Room I (indoor)
Approx. 8 m², with designer concrete floor, plastered walls and ceiling, sink, and manual double door to the driveway.
Also houses the meter cabinet with 8 circuits, 3 RCDs, and 3 power circuits.
Living Room
Approx. 30 m², with designer concrete floor, plastered and concrete walls, plastered ceiling with recessed lighting, two sliding doors to the front and side garden, and two full-width glass facades with electric sun screens on the southeast side.
Transition Space
Approx. 7 m², with designer concrete floor, plastered walls and ceiling with recessed lighting, two built-in cabinets with solid hardwood sliding doors, and fully glazed wall with side garden view.
Multifunctional Room
Approx. 13 m², with designer concrete floor, plastered walls and ceiling with recessed lighting, sliding door and glass on three sides.
Ideal as a quiet home office with lots of natural light, or as a studio, playroom, or extra bedroom.
Storage Room II (indoor)
Approx. 4 m², with designer concrete floor, plastered walls and ceiling with recessed lighting, extra-wide pivot door (1.7 m), and preparations for a bathroom.
First Floor (concrete structure, underfloor heating and cooling)
Landing
Access to 2 bedrooms and bathroom.
Bedroom III
Approx. 22 m², with designer concrete flooring, plastered walls and ceiling (ceiling height approx. 4.2 m), and door to flat roof at the rear (with the solar panels).
Bedroom IV
Approx. 12.5 m², with designer concrete floor, plastered walls and ceiling, and access to attic of approx. 9 m² via removable ladder.
Bathroom
Approx. 6 m², with tiled floor, partially tiled and plastered walls and ceiling, walk-in shower with thermostatic tap, bathtub with thermostatic tap, double washbasin, and floating toilet.
Attic (wooden floor)
Accessible via removable ladder from Bedroom IV.
Exterior
Garden
Fully enclosed garden with gates on both sides: approx. 25 m deep and 5 m wide and 12 m deep and 3 m wide, facing southeast and northwest. Includes garden lighting, outdoor power outlets, and outside taps.
Covered Terrace
Approx. 30 m², directly adjacent to the living room, storage II, and multifunctional room. Features recessed lighting, fireplace, and a custom roof opening with a tree growing through it.
Storage with Covered Area
Approx. 5 m² storage plus approx. 5 m² covered area.
Driveway
Parking space for 1 car.
General Information
Year built: approx. 2013
Building volume: approx. 815 m³
Living area: approx. 206 m²
Other internal space: approx. 12.5 m²
Attached outdoor space: approx. 49 m²
Plot size: approx. 530 m²
Insulation
Fully fitted with high-efficiency glazing (HR glass)
Wall, roof, and floor insulation throughout
Zoned underfloor heating and cooling, individually controlled per room
Energy Label
A++
(28 solar panels were added after the energy label was issued.)
Acceptance
To be agreed upon
Asking Price
€ 1,095,000 (buyer’s costs)