Ons kantoor is lid van Baerz & Co Luxury Homes; een internationaal platform dat exclusieve woningmakelaars met elkaar verbindt. Neem contact op met ons secretariaat voor meer informatie over het landelijke aanbod, waarvan u hieronder een selectie kunt bekijken.

Villa for sale in BERKEL-ENSCHOT

BERKEL-ENSCHOT Laurier 5 - 5056 RJ The Netherlands


Shirley Kneepkens profile image
Shirley Kneepkens
Real Estate Agent
+31 (0)6 51 6789 53
shirley@shirleykneepkens.nl

Shirley Kneepkens Makelaardij
Raadhuisstraat 44
5056HD Berkel-Enschot
NETHERLANDS
+31 (0)13 533 56 55
www.shirleykneepkens.nl
info@shirleykneepkens.nl

Living area
275m2
Plot size
1240m2
Bedrooms
4

Description

A Dream Home Where Luxury, Comfort, and Design Come Together

Living like you're on vacation every day? It's possible in this unique villa at Laurier 5 in Berkel-Enschot. Situated on a quiet cul-de-sac and directly bordering a beautiful park, this home offers not only ultimate privacy but also stunning, unobstructed views. Here, you live surrounded by greenery, with the atmosphere of the countryside, yet centrally located between Tilburg, Den Bosch, and Eindhoven.

Built entirely new in 2022, this villa boasts a living area of 305 m² and exudes quality, luxury, and future readiness. With an energy label of A++++, a full Philips Hue lighting plan, security system with cameras, and 72 solar panels, this house is fully equipped for the future. Extra-high ceilings, floor-to-ceiling steel doors, and underfloor heating and cooling throughout ensure a modern and comfortable living environment.

Inside, the spacious kitchen with a cooking and sink island forms the heart of the home. All elements — kitchen, bathrooms, wardrobes, and vanity units — are fully custom-designed with attention to detail and style. The bright living room and corridor with an impressive glass façade create a stunning connection to the architect-designed garden and breathtaking views. With four spacious bedrooms and two luxurious bathrooms, there’s plenty of room for the whole family.

Outside, enjoyment reaches its peak: a heated swimming pool, multiple covered terraces, and a luxury veranda turn outdoor living into a true experience. Everything breathes peace, comfort, and exclusivity. You’ll enjoy maximum privacy, with open views over expansive agricultural fields to the side and the green paddocks behind. This unique combination of space and nature enhances the feeling of freedom.

Dreaming of building your own villa? That entire process has already been done for you — without the stress and hassle. This home is move-in ready, hyper-modern, and finished to perfection, down to the last detail.

Laurier 5 is more than just a house: it’s a lifestyle. Luxury, comfort, and carefree living come together here in a truly exceptional way.

Ground Floor

(entirely equipped with underfloor heating and cooling and professional Wi-Fi satellites both inside and outside)

Entrance Hall

Approx. 19.5 m², with tiled flooring, plastered walls and ceiling with recessed lighting, a wardrobe, floating staircase with access to the master suite and first floor, and a floor-to-ceiling steel door leading to the corridor.

Guest toilet with plastered walls and ceiling with recessed lighting, wall-hung toilet, and washbasin.

Second toilet with plastered walls and ceiling with recessed lighting, urinal, and washbasin.

Corridor

Approx. 15 m², with tiled flooring, plastered walls, extra-high plastered ceiling with recessed lighting, and a full-height glass wall offering views of the garden. Equipped with an electric screen.

Living Room

Approx. 39.5 m², with herringbone PVC flooring, plastered walls, and extra-high plastered ceiling with recessed lighting.

Kitchen

Approx. 47 m², with tiled flooring, plastered walls and ceiling, two sliding doors, two insect screen doors, electric screens, built-in ceiling audio system, and a straight kitchen layout featuring:

Composite countertop with raised bar section

Cooking and sink island

4-zone induction hob with integrated extractor

Double sink

Quooker Flex

American-style fridge/freezer combo

Combi oven, combi steam oven

Dishwasher

Two wine climate cabinets

Utility Room / Laundry

Approx. 6.5 m², with tiled flooring, plastered walls and ceiling, built-in wardrobe, integrated fridge/freezer combo, laundry connections, and access to the garden and indoor garage.

Bedroom 1 (Master Suite)

Approx. 22.5 m², with tiled flooring, plastered walls and ceiling, walk-in closet, TV and internet connection, and access to the en-suite bathroom.

En-suite Bathroom

Approx. 8.5 m², with tiled flooring, plastered walls (beton ciré), plastered ceiling, walk-in shower, and a vanity unit with two sinks.

Garage

Approx. 28 m², equipped with electricity, heating, indoor access, water softener, Stiebel Eltron heat pump (2022), and automatic sectional garage door.

First Floor

(fully equipped with underfloor heating and cooling)

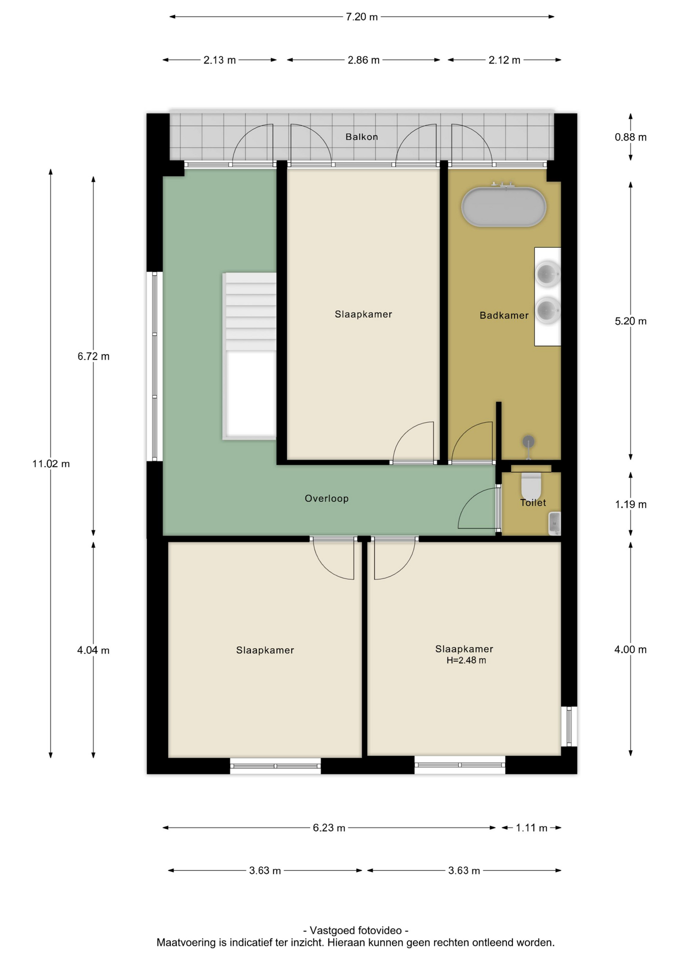
Landing

Approx. 19.5 m², with PVC flooring, plastered walls and ceiling with recessed lighting, balcony door, and access to three bedrooms, bathroom, and separate toilet.

Bedroom 2

Approx. 15 m², with PVC flooring, plastered walls and ceiling, TV and internet connection.

Bedroom 3

Approx. 14.5 m², with PVC flooring, plastered walls and ceiling, TV and internet connection, and insect screens.

Bedroom 4

Approx. 14.5 m², with PVC flooring, plastered walls and ceiling, TV and internet connection, and insect screens.

Bathroom 2

Approx. 11 m², with tiled flooring, fully tiled walls, plastered ceiling with recessed lighting, walk-in shower with thermostatic control, freestanding bathtub, and a vanity unit with two sinks.

Separate toilet

Wall-hung toilet and washbasin.

Exterior
Garden

Architect-designed southwest-facing backyard with unobstructed views of paddocks at the back and farmland to the side.
Features include:

Irrigation system

Garden lighting

Two outdoor taps

Stainless steel outdoor shower

Custom hardwood garden furniture with sun loungers

Mobile outdoor kitchen

Electrical outlets throughout

Swimming Pool

Heated pool with lighting, approx. 1.50 m deep, with solar cover, integrated steps, jets, and heat pump heating. Includes a separate outdoor toilet.

Veranda

Approx. 27 m², with lighting, temperature-controlled heater, TV and internet connections, built-in ceiling audio, bar with hot/cold water boiler, refrigerator, and fully closable with glass sliding panels.

Pergola

Approx. 26 m², with lighting, automatic louvered roof, and custom hardwood lounge bench.

Storage Shed

Approx. 10.5 m², wooden construction with electricity.

Driveway

Secured with an electric double designer gate. The design elements of the gate are reflected throughout the property.
Room for 6 cars and includes an EV charging station.

General Information

Year Built: 2022

Volume: approx. 1,133 m³

Living Area: approx. 275 m²

Other Internal Space (garage + outdoor toilet): approx. 30.5 m²

Building-related Outdoor Space (balcony): approx. 6.5 m²

External Storage (shed): approx. 10.5 m²

Plot Size: approx. 1,240 m²

Insulation & Energy

Triple-glazed windows throughout

Fully insulated (walls, roof, and floors)

72 solar panels

Entire house with underfloor heating and cooling

Energy Label: A++++

Availability

By mutual agreement.

Asking Price

€1,897,500 (buyer’s costs)

Features

Transfer of ownership
price
€ 1.897.500 k.k.
Status
beschikbaar
Acceptance
in overleg
Construction
Kind of house
Villa
Building type
vrijstaande woning
Construction period
2022
Energy rating
A_PPPP
Roof type
plat dak
Bedrooms
4
Bathrooms
2
Surface Areas And Volume
Living area
275 m2
Other indoor space
31 m2
Exterior space attached to the building
6 m2
External storage space
11 m2
Volume in cubic meters
1133 m3
Plot size
1240 m2
facilities
Buitenzonwering
Zwembad
Schuifpui
Zonnepanelen
Aan rustige weg
In woonwijk
Vrij uitzicht
Landelijk gelegen
Baerz & Co Property Brochure

Brochure

Information / Viewing request

Videos

Photos

Floor Plans