Baerz & Co is een landelijk samenwerkingsverband van zorgvuldig geselecteerde boutique luxury makelaars. Samen vormen wij één netwerk, met één gedeeld aanbod. De woningen die u op onze website ziet, zijn afkomstig van alle aangesloten kantoren binnen Baerz & Co. Daardoor is niet ieder object rechtstreeks door ons kantoor in verkoop, maar door een gespecialiseerde collega binnen ons netwerk. Heeft u een woning gevonden die u aanspreekt en wilt u meer informatie? Dan brengen wij u graag persoonlijk in contact met de betreffende verkoopmakelaar, zodat u direct en zorgvuldig wordt begeleid.

LEIDEN
Nieuwe Rijn 17 - 2312 JC
Netherlands

Roy Boesveld profile image
Roy Boesveld
Real Estate Agent
€1,995,000 k.k.
Living Area
437m2
Plot Size
273m2
Bedrooms
7

Description

Living at the foot of the castle in a historic building with a spacious garden and a lot of living space.

This example of 17th-century wealth is located along the water of the Rhine at the foot of the castle hill. As usual at that time, the face of the facade was modest, almost even subdued. However, this was more than compensated for inside. The prosperity was exuberantly displayed: richly decorated natural stone fireplaces and opulent stuccowork adorn the ground floor. After all, this is where guests were received and people had to impress. Although the centuries have passed, much of the original wealth of this building has been retained and the current owner has completely modernized it. In addition, both floors and the rear house are characterized by large and high rooms, where heavy oak beams and impressive roof structures with large and high windows provide light and views.

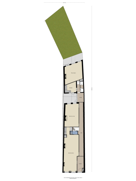
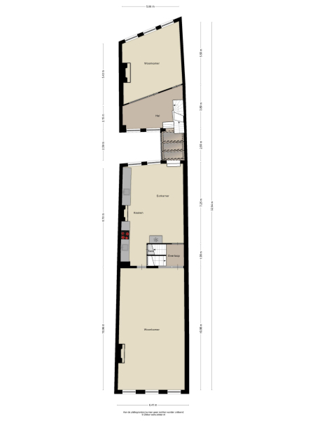
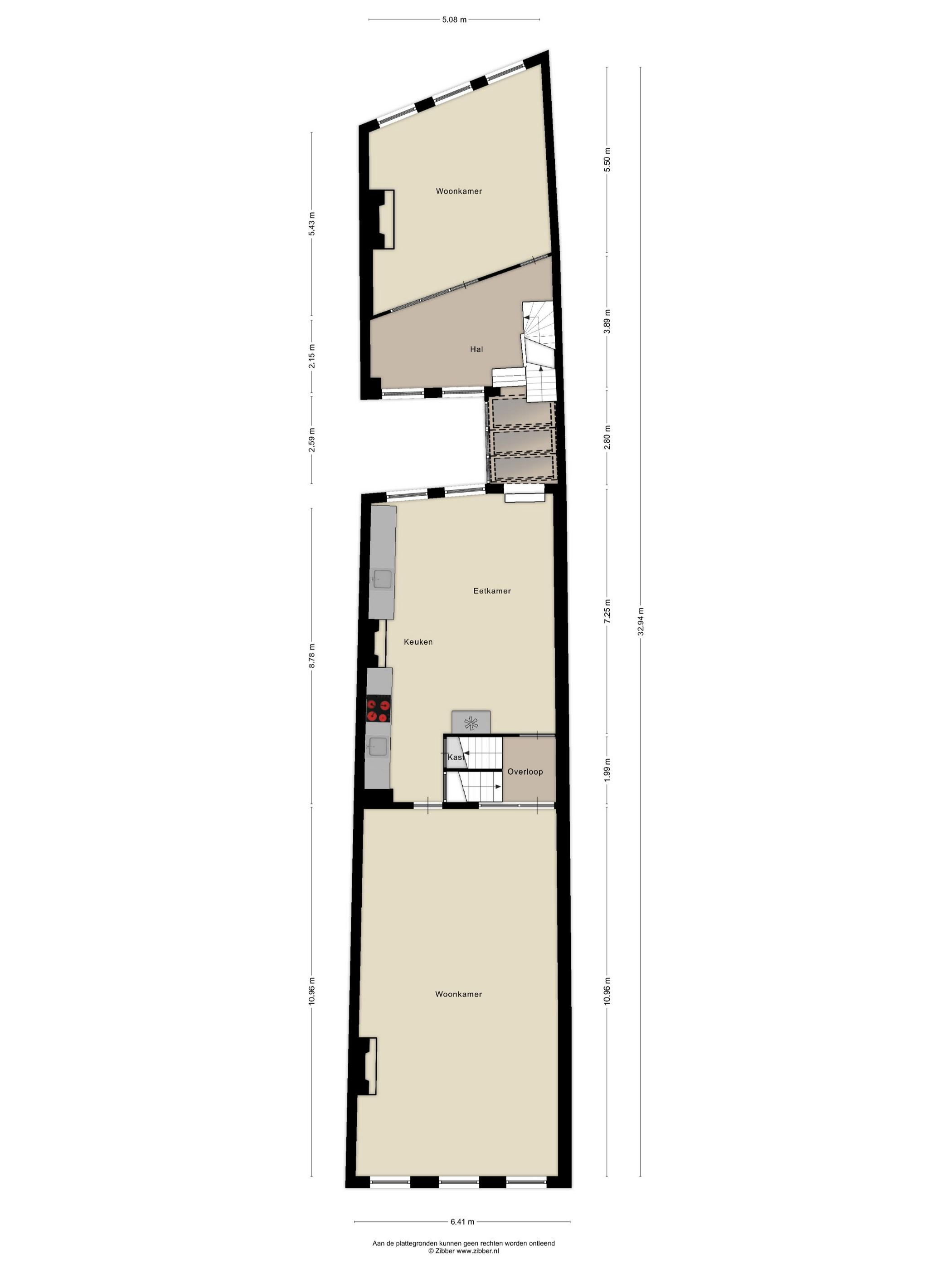
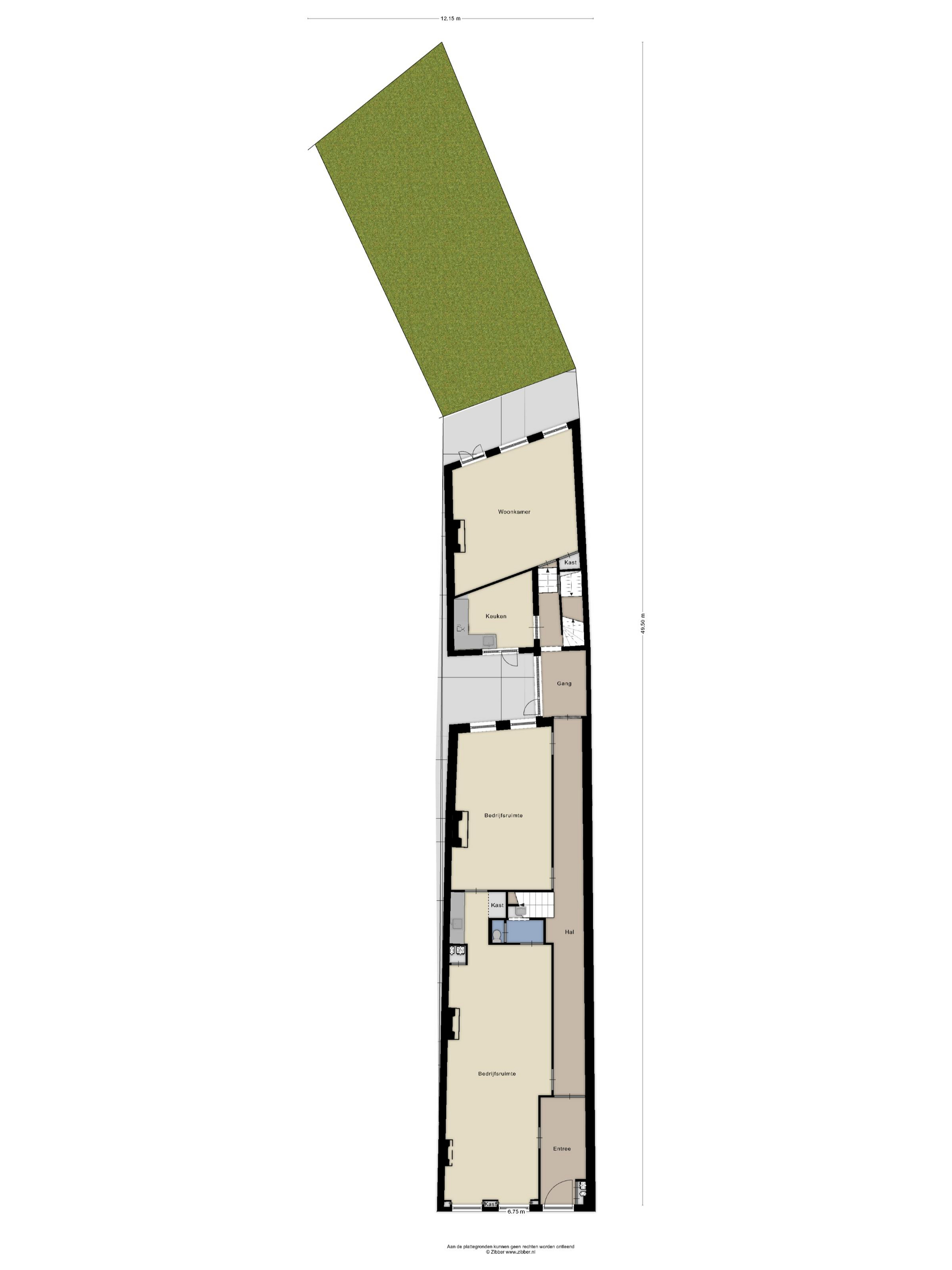
The front house is the original main house. The ground floor houses a shop (which is also available for purchase), and the first floor now houses the 70 m² living room, which overlooks the Rhine and Stadhuisplein. At the rear is the kitchen/diner with space. A lot of space. With 50 m², long worktops and a dining table that seats 12, this is now the heart of the house. From here there is also one of the passages to the back house along the courtyard, which provides a lot of light. The sleeping floors are one floor higher. Here the house has been peeled back to the structure with the beautiful wooden siding roof in full view. High Velux windows have been installed between the tracks, providing beautiful light at any time of the day. At the front you will find three bedrooms, a bathroom and, above all, plenty of storage space with fitted wardrobes and a linen room, spread over two floors. At the rear, the master bedroom with ensuite bathroom covers the entire roof with a ridge of no less than 8 meters high.

The rear house is oriented towards the garden and the castle hill. From the various rooms you can see the Burggraaf's old home through beautiful high windows: an 800-year-old oasis of greenery in the middle of the city center. Here the current owner has a garden room on the ground floor with an extra kitchen. You also need this, because having to go through the entire building every time for a snack or drink when you're sitting in the garden is a bit much to ask. There are quite some distances you can cover here. There is now a second living room on the 1st floor. with high ceilings, a fireplace and the best view of the Castle. It could also make a lovely office or library. Upstairs is a separate guesthouse with private bathroom and toilet. An aupair could also have a very nice place here.

When you step out the front door, you are right in the heart of the medieval and bustling center of Leiden: terraces, the market, passing boats. museums, restaurants. Literally everything is within walking distance. Schools, sports clubs and other activities can be reached by bike within a short distance, as can Leiden Central Station. You will receive a permit for your car in the city center. You can't park it right in front of the door, but you can drive up in the early mornings and evenings. Parking is possible a little further away and visitors can park in one of the parking garages nearby.

PARTICULARITIES

- National monument
- Located in a protected cityscape
- Old age clause applies
- Destination: center
- Shop rental contract until 11/30/2027

Features

Transfer of ownership
Asking Price
€ 1.995.000 k.k.
Status
beschikbaar
Acceptance
in overleg
Construction
Kind of house
Grachtenpand
Building type
tussenwoning
Construction period
1650
Roof type
zadeldak
Bedrooms
7
Bathrooms
3
Surface Areas And Volume
Living Area
437 m2
Other indoor space
31 m2
Volume in cubic meters
1659 m3
Plot Size
273 m2
Facilities
Mechanische ventilatie
Rookkanaal
Dakraam
Glasvezel kabel
Aan water
In centrum
Vrij uitzicht
Aan vaarwater
Baerz & Co Property Brochure

Brochure

Videos

Floor Plans

Willemsen Makelaars

Jansplaats 29
6811 GB Arnhem

r.boesveld@willemsen.nl
+31 26 445 27 51

www.willemsen.nl

Information / Viewing request

Roy Boesveld profile image
Roy Boesveld
Real Estate Agent

Buying a Luxury Property in Leiden

Leiden offers exceptional heritage, dynamic culture, and curated services, creating an appealing environment for international residents. With refined homes, vibrant academia, and discreet luxury, this canal city delivers a sophisticated lifestyle for a discerning, global community.