Baerz & Co is een landelijk samenwerkingsverband van zorgvuldig geselecteerde boutique luxury makelaars. Samen vormen wij één netwerk, met één gedeeld aanbod. De woningen die u op onze website ziet, zijn afkomstig van alle aangesloten kantoren binnen Baerz & Co. Daardoor is niet ieder object rechtstreeks door ons kantoor in verkoop, maar door een gespecialiseerde collega binnen ons netwerk. Heeft u een woning gevonden die u aanspreekt en wilt u meer informatie? Dan brengen wij u graag persoonlijk in contact met de betreffende verkoopmakelaar, zodat u direct en zorgvuldig wordt begeleid.

NOORDWIJK
Het Laantje 39 - 2201 XS
Netherlands

Roy Boesveld profile image
Roy Boesveld
Real Estate Agent
€3,395,000
Living Area
336m2
Plot Size
2280m2
Bedrooms
4

Description

High-end villa with pool

An exceptionally beautiful high-end villa with a heated pool located in the quiet countryside of Noordwijk. The home features a practical and well-thought-out layout and has been built and finished with great care and attention to detail, using only high-quality materials. The result is a stylish and extremely comfortable villa with a beautiful, timeless appeal.
• 4 bedrooms
• 3 bathrooms
• Heated pool with pool house
• Additional room in the basement furnished as a bar
• Energy rating A++++

Year built 2023, living area 336 m², volume 1,171 m³, lot size 2,280 m²

Ground Floor
Upon entering, you’ll find a spacious entryway with a loft and a beautiful staircase; it immediately becomes clear that this villa was designed with a sense of space and elegance. Steel doors with smoked glass provide access to the living room.
The spacious living room, featuring a room divider with two gas fireplaces, has a warm and inviting atmosphere and direct access to the garden.

The adjacent kitchen is very generously laid out with a large cooking island and a long breakfast bar, creating a lovely spot for socializing. Equipped with professional appliances such as two refrigerators/freezers, two ovens, two combination microwave/ovens, a spacious induction cooktop with an integrated Bora exhaust system, two dishwashers, and a Quooker for boiling, purified, and sparkling water, this kitchen is truly equipped with every convenience.
Large windows provide an abundance of natural light, and the room divider creates a playful connection to the living room.

First Floor
The first floor features two spacious bedrooms and two luxurious bathrooms, both exuding the same warm ambiance but offering varying views of bulb fields and dunes. The master bedroom has its own elegant walk-in closet, leading directly to an en-suite bathroom equipped with a bathtub, a luxurious double vanity, a shower, and a separate toilet.
The second bedroom features built-in closets and its own bathroom with a double vanity, walk-in shower, and toilet. From this room, a pull-down ladder provides access to a very large attic storage space.

Basement
The home has a full basement, but skylights on this level provide natural light and additional ventilation. This level features a practical layout and offers a surprising amount of space. Here you’ll find a spacious entryway with a toilet, two spacious bedrooms, and a luxurious bathroom with a walk-in shower and vanity; the same warm atmosphere is carried through here as well. There is also a large utility room and, finally, a stylish bar/man cave with a pantry and built-in cabinets.

Outbuilding
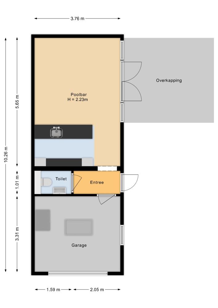
The garden features a beautiful outbuilding in the same style as the villa. It houses a spacious pool bar with a pantry, a private restroom, and a convenient storage room with an electric door, offering ample space for storing bicycles and gardening equipment.
The pool house features a lovely veranda with heaters and screens. A storage attic spans the entire building and is accessible via a loft ladder.

Garden
The large garden surrounding the home was recently landscaped with plenty of greenery and hedges for privacy. A large driveway is enclosed by an electrically operated remote-controlled gate, and there is also extra-large parking space, also enclosed by an electrically operated gate. The large terrace behind the house features a stylish heated swimming pool (4x12) and a lovely sunken terrace to enjoy the sun out of the wind. The terrace is equipped with 9 meters of awning and screens on the sides. A large jacuzzi connected to a separate circuit with high-voltage power.

The wooden shed offers extra space for garden tools and furniture. The home was built with sustainability in mind, and the property features its own solar panel array, which provides significant energy savings.

Sustainability and comfort
• Triple-pane windows
• Fully insulated
• Underfloor heating throughout the home
• Geothermal heat pump for the home
• Air-source heat pump for the pool
• Water softening system
• Heat recovery ventilation system
• Modern home automation
• Sonos system throughout the home
• Camera and alarm system
• Pre-wiring for a charging station
• 48 solar panels
• Automatic garden irrigation with private well
• Inlite garden lighting
• Maintenance-free aluminum window frames

Location
Located in the peaceful countryside of Noordwijk, you can enjoy unobstructed views of the flower fields and dune landscape, as well as peace and space. The boardwalk, beach, and sea are just a 10-minute walk away, accessible by crossing the dune area.
Schools are within walking distance, and sports facilities, charming restaurants, and cozy shops are within cycling distance.
Via the N206, A44, and A4, cities such as Amsterdam/Schiphol, Haarlem, Leiden, and The Hague are easily accessible.
Enjoy the best of both worlds: the tranquility of the countryside, with all daily amenities within easy reach.

Come experience the luxury and comfort for yourself,
call our office to schedule a viewing.

Features

Swimming pool
Solar panels
Alarm system
Transfer of ownership
Asking Price
€ 3.395.000
Status
beschikbaar
Acceptance
in overleg
Construction
Kind of house
Landhuis
Building type
vrijstaande woning
Construction period
2023
Energy rating
A++++
Roof type
zadeldak
Bedrooms
4
Bathrooms
3
Surface Areas And Volume
Living Area
336 m2
Other indoor space
0 m2
Exterior space attached to the buildinge
21 m2
External storage space
23 m2
Volume in cubic meters
1171 m3
Plot Size
2280 m2
Facilities
Mechanische ventilatie
Alarminstallatie
Buitenzonwering
Zwembad
Jacuzzi
Rookkanaal
Domotica
Zonnepanelen
Balansventilatie
Aan bosrand
Aan rustige weg
Vrij uitzicht
Open ligging
Buiten bebouwde kom
In bosrijke omgeving
Landelijk gelegen
Baerz & Co Property Brochure

Brochure

Videos

Video Het Laantje 39

Willemsen Makelaars

Jansplaats 29
6811 GB Arnhem

r.boesveld@willemsen.nl
+31 26 445 27 51

www.willemsen.nl

Information / Viewing request

Roy Boesveld profile image
Roy Boesveld
Real Estate Agent

Buying a Luxury Property in Noordwijk

Noordwijk melds elegant coastal living with strong community bonds and refined amenities. International appeal, discreet services, and a relaxed pace make it an enduring choice among discerning property owners.