Baerz & Co is een landelijk samenwerkingsverband van zorgvuldig geselecteerde boutique luxury makelaars. Samen vormen wij één netwerk, met één gedeeld aanbod. De woningen die u op onze website ziet, zijn afkomstig van alle aangesloten kantoren binnen Baerz & Co. Daardoor is niet ieder object rechtstreeks door ons kantoor in verkoop, maar door een gespecialiseerde collega binnen ons netwerk. Heeft u een woning gevonden die u aanspreekt en wilt u meer informatie? Dan brengen wij u graag persoonlijk in contact met de betreffende verkoopmakelaar, zodat u direct en zorgvuldig wordt begeleid.

OUD OOTMARSUM
Laagsestraat 21 - 7637 PA
Netherlands

Roy Boesveld profile image
Roy Boesveld
Real Estate Agent
Price on request
Living Area
325m2
Plot Size
36499m2
Bedrooms
4

Description

Erve Scholte Splinterink – an exclusive country estate with park-like grounds, equestrian facilities and wellness

Where history, luxury and nature unite
Nestled at the edge of the charming art town Ootmarsum, hidden behind majestic trees, lies this unique country estate spanning approximately 3.65 hectares. A homestead with over 750 years of history, rebuilt and expanded into a luxurious living environment where quality, comfort and nature coexist in perfect harmony.

A homestead with centuries of history
This remarkable estate, historically known as “Erve Scholte Splinterink,” boasts an impressive legacy. As early as 1272, it was mentioned as "Splinterinckhof" and belonged to the Bishops of Utrecht. By around 1778, it appeared on regional maps as a recognizable landmark in the Twente countryside and served primarily as a farmstead. Its rich history is documented in detail by Herman Hagens in the book ’t Inschrien (1970), under the title “Splynterinck yn olde Oetmerssem.”

Ready for the future
In 1969, the former farmhouse has been replaced by an elegant country house in the traditional Saxon style native to the region, designed by a Twents architect W. Morsink. In recent years, the home has been expanded with a conservatory and is modernised and made energy-efficient (insulation, heat pump and 99 solar panels, resulting in an A++++ energy label).

The Residence
The historic silhouette of the former farmhouse has been preserved, while the interior has been tastefully designed with a keen eye for style and luxury. You will find a spacious modern live-in kitchen, cosy living areas and multiple bedrooms and bathrooms, all finished with high-end materials. A home that combines warmth and grandeur, perfect for everyday living as for entertaining guests.

Layout:

Ground floor
• Entrance with spacious hallway, cloakroom and guest toilet
• Living room featuring a robust solid oak parquet floor, a fireplace with stove set on a Bentheimer sandstone base and breathtaking views of the surrounding rolling landscape
• Generous live-in kitchen with modern cooking island and fitted cabinetry, equipped with composite and stainless steel countertops and high-end built-in appliances including an oven, steam oven, microwave, refrigerator, freezer, dishwasher, Quooker and wine cooler. Ample space for dining with family and friends
• Adjoining a large conservatory, fitted with stylish anthracite frames that fully open. Oak wood and poured concrete floors combine beautifully, making this a much-loved multifunctional space
• Master bedroom with air conditioning, built-in wardrobes and an ensuite luxury bathroom featuring double washbasin, bidet, toilet and steam shower cabin
• Utility/laundry room with connections for washing equipment
Basement
A mostly tiled space which includes a laundry area, pantry and technical rooms housing the boiler, water softener, inverters for the solar panels and the heat pump

First floor
• Landing with loft and built-in storage
• Spacious bedroom with walk-in closet and ensuite bathroom with shower, double washbasin, toilet, bidet.
• Bedroom with playful loft space accessed by fixed stairs and a bathroom with bath, shower, toilet, washbasin and designer radiator
• Another bedroom with ensuite bathroom, complete with corner bath, shower, toilet, bidet and washbasin
• All bedrooms have solid oak flooring (except bathrooms)

Attic
• Spacious storage attic accessible via loft ladder

Private Wellness Retreat
A charming outbuilding serves as an oasis of relaxation. It houses a large indoor swimming pool, luxury sauna and exclusive shower and changing area. As the cherry on top, there is a jacuzzi on the adjacent outdoor terrace — the perfect setting to relax or welcome guests in exclusive style. The upper floor of this building offers the potential to create a guest apartment.

Park-like estate grounds
The grounds are truly a feast for the eyes. Once you pass through the gate and follow the rustic driveway, the intimate atmosphere of this extraordinary domain immediately becomes apparent. On one side, you are surrounded by mature trees and an impressive overflow pond that is naturally connected to the Moerbekke stream and therefore never runs dry. A cosy seating area by the water offers a private, idyllic spot to enjoy the view and the dancing light on the surface. On the other side, rolling meadows and farmland stretch out, interspersed with tree lines and small wooded areas.
Lush lawns with various terraces surround the house. Gardening enthusiasts will appreciate the well-equipped greenhouse and vegetable garden. Nearly the entire property is irrigated, so even during increasingly dry and hot summers, the estate remains vibrantly green.
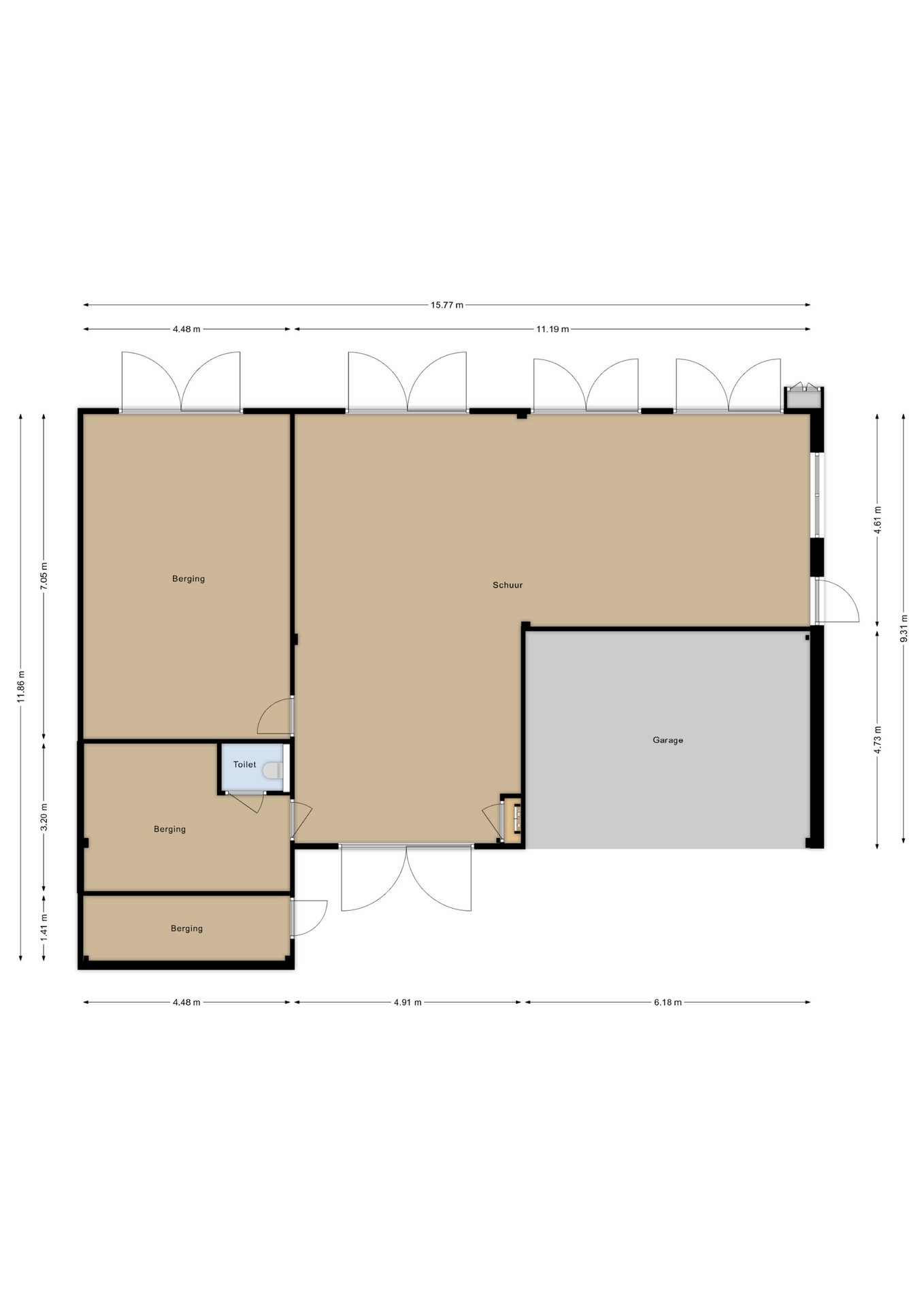
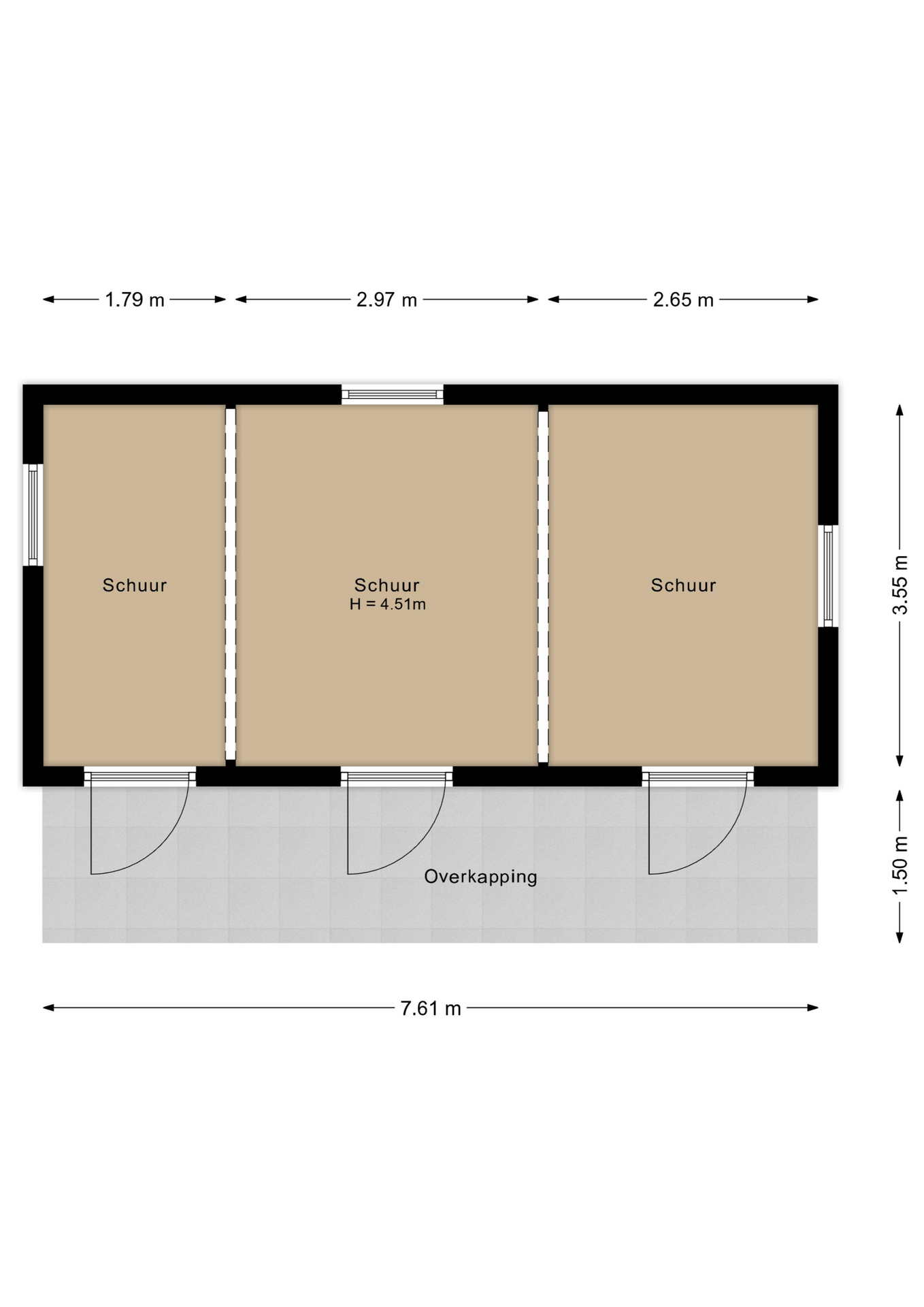
Luxury Barn
A few years ago, a new multifunctional barn was constructed on the property. Built from oak beams and walls, its design blends seamlessly into the classical Twente landscape while discreetly housing modern, high-end amenities. Fully basemented and equipped with a heated ramp, it is ideal for storing both small and large equipment. The building is fully insulated and suitable for a wide range of uses — from workshop or vintage car storage to a studio, office, or gentleman’s lounge.

Equestrian Facilities
Horse enthusiasts will find everything they need. Spread over two buildings, there are 4 stables with adjacent rooms that can accommodate a solarium, roughage or bedding storage.
Connected to the buildings are several riding arenas with HVL footing and ebb-and-flow systems, ensuring year-round usability. The arenas measure approximately 50 × 25 metres and 24 × 17 metres. A lunging pen with the same high-quality footing and irrigation system is also available, along with adequate lighting.
The large pastures are securely fenced and feature sturdy gates, allowing access for large machinery. The paths leading to them are semi-paved with crushed stone, enabling year-round access without damaging the terrain.

Location
The setting is truly unique. Just a short distance away is the lively town of Ootmarsum, known for its art galleries, terraces and fine dining. To the north lies the nature reserve “’t Springendal”, where springs, streams and wooded hedgerows create a picturesque backdrop for walking, cycling or horseback riding.

Historical Background – Erve Scholte Splinterink
The current estate at Laagsestraat 21 was known for centuries as “Erve Scholte Splinterink.” It is among the oldest estates in the Ootmarsum area and boasts a long, well-documented history.
Earliest mention
The estate was first recorded in 1272, making it one of the oldest known farmsteads of Old Ootmarsum. For centuries, it played a vital role in local agriculture and community life, with the name Scholte Splinterink passed down through generations.
The domain map (ca. 1778)
An 18th-century domain map — a precursor to modern land registries — from around 1778 already depicts the estate in detail. Preserved at the Historical Centre Overijssel in Zwolle, this special map shows the location of the estate within the Twente landscape, serving as tangible proof of its enduring historical significance.
Literature
In 1970, Herman Hagens chronicled the estate’s history in his booklet ’t Inschrien, under the title “Splynterinck yn olde Oetmerssem.”

From medieval farmstead to luxurious estate
The rich heritage of Erve Scholte Splinterink forms the foundation for today’s exceptional estate — ancient roots that have blossomed into a new, luxurious form of living.
This presentation is informative and non-binding. Drawings, dimensions, surface area and volume are indicative and no rights can be derived from them. A more detailed brochure is available on request.

Features

Swimming pool
Solar panels
Transfer of ownership
Price on application
Status
beschikbaar
Acceptance
in overleg
Construction
Kind of house
Landhuis
Building type
vrijstaande woning
Construction period
1969
Energy rating
A++++
Bedrooms
4
Bathrooms
4
Surface Areas And Volume
Living Area
325 m2
Other indoor space
0 m2
External storage space
380 m2
Volume in cubic meters
1449 m3
Plot Size
36499 m2
Facilities
Mechanische ventilatie
Zwembad
Zonnepanelen
Vrij uitzicht
Landelijk gelegen
Baerz & Co Property Brochure

Brochure

Videos

Willemsen Makelaars

Jansplaats 29
6811 GB Arnhem

r.boesveld@willemsen.nl
+31 26 445 27 51

www.willemsen.nl

Information / Viewing request

Roy Boesveld profile image
Roy Boesveld
Real Estate Agent

Buying a Luxury Property in Oud Ootmarsum

Oud Ootmarsum offers a refined countryside community designed for those who value heritage, serenity, and bespoke services. The locale draws a global set appreciative of its artisanal traditions and rare opportunity for authentic Dutch village living.