Baerz & Co is een landelijk samenwerkingsverband van zorgvuldig geselecteerde boutique luxury makelaars. Samen vormen wij één netwerk, met één gedeeld aanbod. De woningen die u op onze website ziet, zijn afkomstig van alle aangesloten kantoren binnen Baerz & Co. Daardoor is niet ieder object rechtstreeks door ons kantoor in verkoop, maar door een gespecialiseerde collega binnen ons netwerk. Heeft u een woning gevonden die u aanspreekt en wilt u meer informatie? Dan brengen wij u graag persoonlijk in contact met de betreffende verkoopmakelaar, zodat u direct en zorgvuldig wordt begeleid.

AMSTERDAM
Van Breestraat 45 - 1071 ZG
Países Bajos

€4,000,000
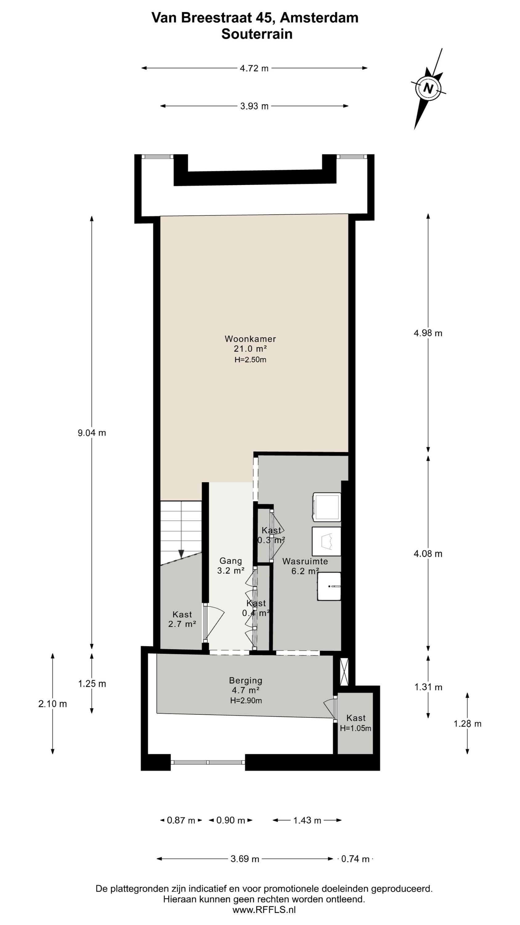
Superficie habitable
291m2
Tamaño del terreno
115m2
Dormitorios
4

Descripción

Esta vivienda familiar en Ámsterdam Oud-Zuid ofrece un equilibrio refinado de luz, espacio y sostenibilidad, situada en una de las zonas más codiciadas de la ciudad. Con aproximadamente 291 m² distribuidos en cinco plantas completas, la residencia dispone de cuatro dormitorios, dos baños y un jardín orientado al sur de 40,2 m². Cada nivel recibe abundante luz natural gracias a una impactante claraboya central y un atrio que iluminan generosamente las áreas de estar y sociales. Los detalles decorativos originales aportan carácter, mientras que las mejoras modernas—paneles solares, aislamiento acústico de alta calidad y un sistema de cableado totalmente integrado para datos y seguridad—garantizan un confort preparado para el futuro.

La cocina-living en la planta baja, equipada con electrodomésticos a medida, se abre a una soleada terraza y jardín, logrando una conexión fluida entre interiores y exteriores. Los pisos superiores ofrecen habitaciones elegantemente proporcionadas, múltiples balcones y un espacio de trabajo. Entre las comodidades se incluyen aire acondicionado en varios dormitorios, interruptores programables y un conducto inteligente para la ropa. La vivienda cuenta con Certificado Energético A y es 100% propiedad libre.

Ubicada en Ámsterdam Oud-Zuid, esta casa familiar se encuentra a pocos pasos de tiendas especializadas, galerías y zonas verdes, con excelente acceso a colegios internacionales y centros culturales. El transporte público y las principales vías están muy cerca, y el aparcamiento se gestiona mediante sistema de permisos.

Explora Ámsterdam con Baerz, Tu Buscador y Asesor Personal de Propiedades de Confianza

Navegar en el mercado de lujo de Ámsterdam exige un profundo conocimiento local, discreción y habilidad negociadora. Los mejores asesores ofrecen acceso a listados privados, aclaran las complejidades legales y detectan oportunidades en un contexto donde rara vez afloran al público. Los equipos consultores realizan auditorías exhaustivas y representación personalizada, fortaleciendo su posición en negociaciones, garantizando transacciones impecables y protegiendo su privacidad en cada etapa.

Evita los errores comunes

Los compradores internacionales a menudo pierden tiempo valioso en listados en línea duplicados, desactualizados o engañosos, especialmente porque casi el 30% de las casas de lujo nunca aparecen en el mercado público. Los agentes del vendedor representan los intereses del vendedor, no los del comprador. Incluso solicitar información sobre una propiedad puede resultar en que un agente del vendedor te registre como su “cliente” sin tu consentimiento.
Con Baerz Property Finders & Advisors, evitas por completo todos estos errores. Trabajamos únicamente en tu nombre, ofreciendo representación independiente, orientación clara y acceso a todas las propiedades disponibles, incluidas oportunidades fuera del mercado que otros nunca llegan a ver.

¿Interesado en un Asesor Personal de Propiedades?

Te mostramos todas las casas disponibles en un solo lugar. No dudes en contactarnos para saber cómo podemos satisfacer tus necesidades y proteger tus intereses exclusivamente.

Características

Paneles solares
Transferencia de propiedad
Precio solicitado
€ 4.000.000
Estado
beschikbaar
Aceptación
in overleg
Construcción
Tipo de casa
Eengezinswoning
Tipo de edificio
tussenwoning
Periodo de construcción
1900
Calificación energética
A
Tipo de tejado
plat dak
Dormitorios
4
Baños
2
Superficies y Volumen
Superficie habitable
291 m2
Otro espacio interior
0 m2
Espacio exterior adjunto al edificio
19 m2
Volumen en metros cúbicos
1183 m3
Tamaño del terreno
115 m2
Instalaciones
Mechanische ventilatie
Domotica
Zonnepanelen
Aan rustige weg
In woonwijk
Baerz & Co Property Brochure

Folleto

Vídeos

Visitas virtuales

VIRTUAL TOUR
Virtual Tour Van Breestraat 45

Willemsen Makelaars

Jansplaats 29
6811 GB Arnhem

r.boesveld@willemsen.nl
+31 26 445 27 51

www.willemsen.nl

Solicitud de información / Visita

Roy Boesveld profile image
Roy Boesveld
Real Estate Agent

Comprar una propiedad de lujo en Ámsterdam

Ámsterdam ofrece un estilo de vida cosmopolita, definido por su legado histórico, su conectividad y un lujo discreto. Sus residentes disfrutan de una comunidad internacional vibrante, servicios a medida y una rica vida cultural. La fuerza de la ciudad reside en su fusión de historia, sofisticación y espíritu progresista.